Modular house project “Alpha”
Modular house project “Alpha”
Modular Homes – The Modern Solution for Comfortable Living!
This project is the perfect choice for those who value contemporary style, functionality, and smart design. Compact yet versatile, it is ideal for a small family’s permanent residence or as a cozy country retreat for weekend getaways.
Key Features:
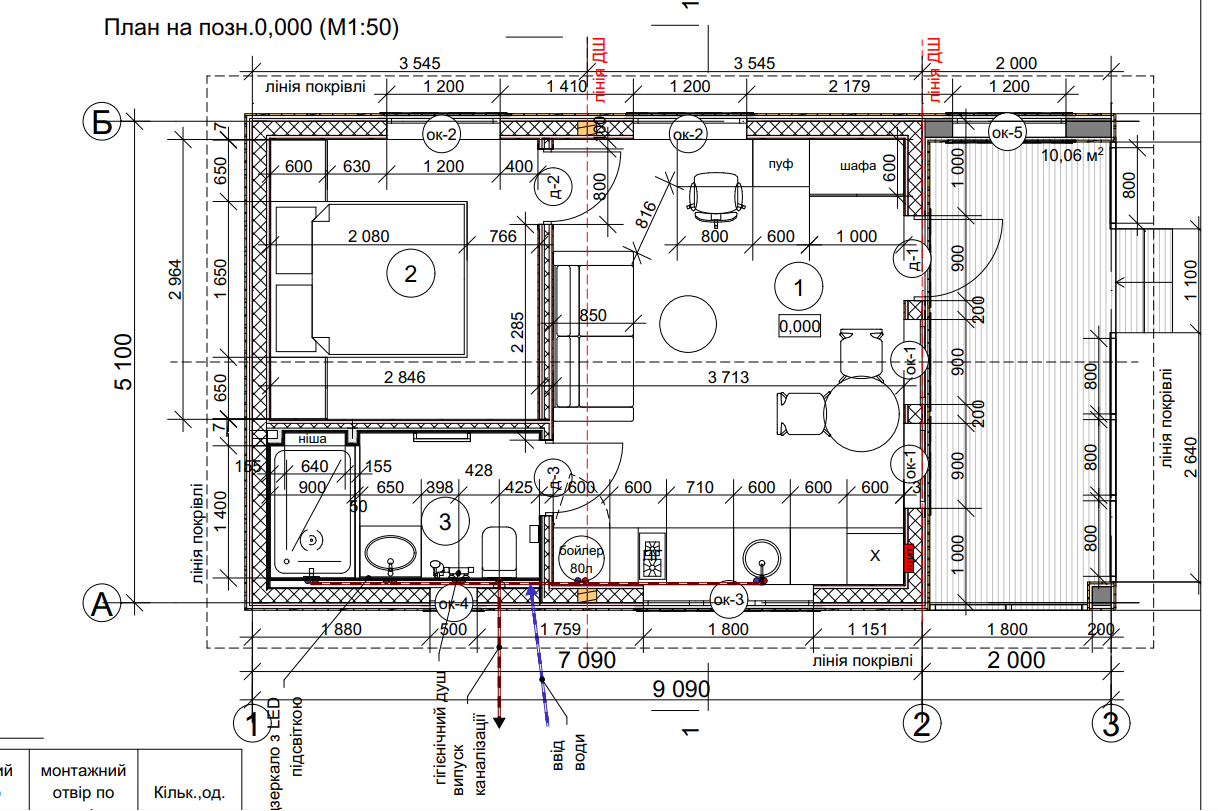
Compact construction: the home is built as a single module, making installation and maintenance simple and efficient.
A charming terrace at the front door – a delightful spot for morning coffee or evening relaxation in the fresh air.
Thoughtful layout:
A spacious main room that serves as the home’s central hub, combining a kitchen, dining area, and a cozy living space.
Direct access from the main room to:
A comfortable bedroom for restful nights.
A well-equipped bathroom with a toilet and sink for daily convenience.
This modular home is adaptable to any environment and can be placed anywhere – from urban settings to serene countryside locations.
Modular living offers comfort, style, and freedom! Discover a new standard of living with a project designed to fit your needs and lifestyle perfectly.

