Modular house project “Beta”
Modular house project “Beta”
Modular Homes – Your Path to the Future!
Introducing a modern modular home project that combines style, comfort, and functionality. Designed for a young family or a small family with a child, this home offers everything you need for a cozy and convenient lifestyle.
Key Features:
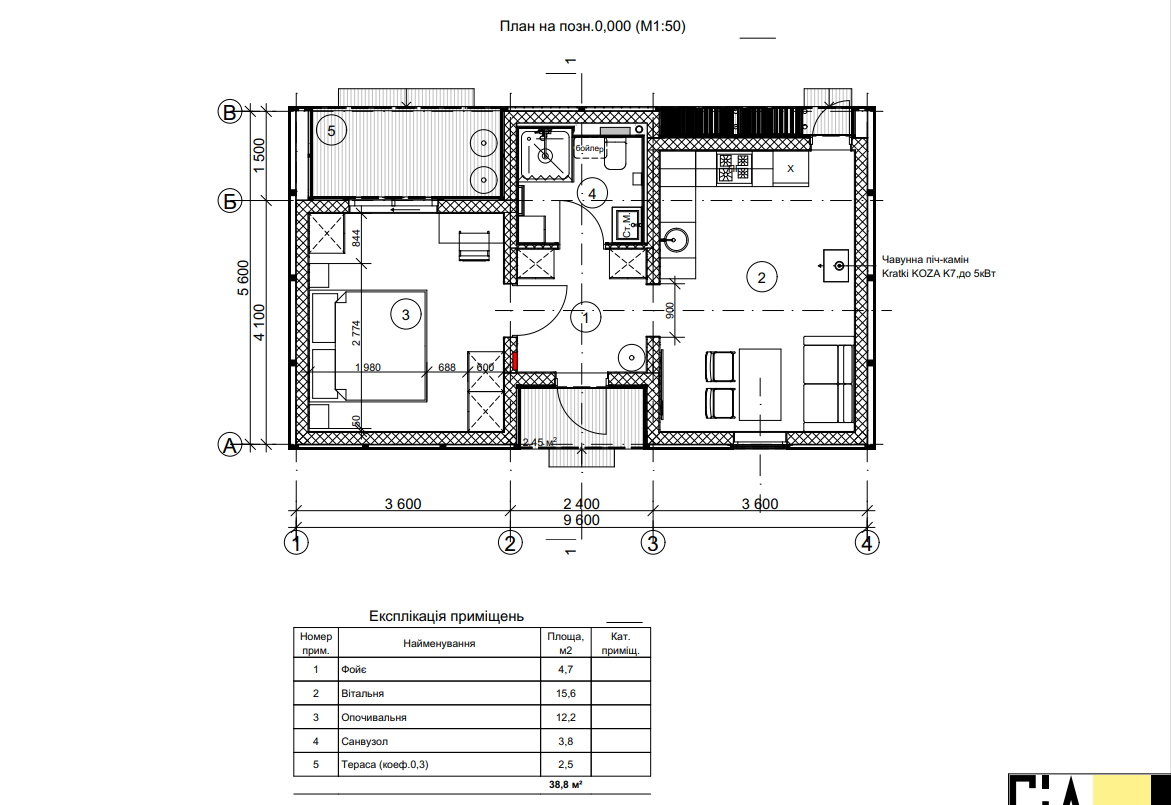
A spacious terrace – perfect for relaxation and enjoying outdoor moments with family and friends.
An external firewood storage with a separate exit – a practical addition for homes in rural or natural settings.
A covered porch at the main entrance, providing a seamless transition from outdoors to indoors.
Three modular sections thoughtfully designed to create a harmonious and functional living space.
Smart Layout:
A welcoming entryway where you can comfortably prepare for outings or organize your outdoor gear.
A cozy bedroom, connected to the rest of the house by a practical corridor.
A dining area and kitchen designed as the central gathering spot for meals and family time.
A well-equipped bathroom with a shower, toilet, and sink for added convenience.
This modular home adapts effortlessly to any environment, whether it’s an urban neighborhood or a serene countryside setting.
Modular living is about elevating comfort and embracing freedom. Choose a home that fits perfectly with your lifestyle and future aspirations!

